Skip to main content

Projets

Liste de travaux entrepris par Betalib dont le but est d'illustrer la nature de notre travail.

Bassin St-Baudile
    Bassin St-BaudileEmprise
EOLE - Station Porte-Maillot
BETALIB était chargée des études des ouvrages suivants :Passage SupérieurPassage P6Passage P0Puits GouraudPuits AbreuvoirRameau puits CarnotRameau puits MessineRameau puits FriedlandRameau puits Marché
Travaux:
EOLE Passage Supérieur
   Longueur 100 m
Eole- passage P0
  Eole-Passage P0 Coupes REVIT
EOLE - Maquette
   EOLE - Maquette
Ligne 14-sud
Travaux:
L14-sud_Ouvrage Annexe-Alouette
L14-sud_OA-Alouette Etudes du Rameau :  Calcul et dessin : soutènement + coffrage + ferraillageLongueur moyenne = 11.5 en 3 parties; Largeur = 6.30 m; Hauteur maxi = 4.75 m 
L14-sud_Ouvrage annexe Hochdorf
L14-sud_Ouvrage annexe HochdorfRameau brisé sur sol 16.0m +7.0m +6.8m de longueursBoite escalier 8.8m x 4.8m x 15.5mHEscalier d'accès brisé sur sol 3.5m +5.5m +2.8m de longueursBoite superficielle + Emergences
L14 Sud - Ouvrage Annexe Petit le Roy
Puits rectangulai
Ligne 16 Lot-3
Ligne 16 Lot 3 Études d’Exécution : Calculs + Maquette Revit + plans de soutènement, coffrage et armatures
Travaux:
Eole - Puits Gouraud
  Eole - Puits GouraudMaquette
Ligne 16 - Lot 3 - Gare de Chelles
L16-Lot3 OA701
L16-3_OA605
L16.3_OA604
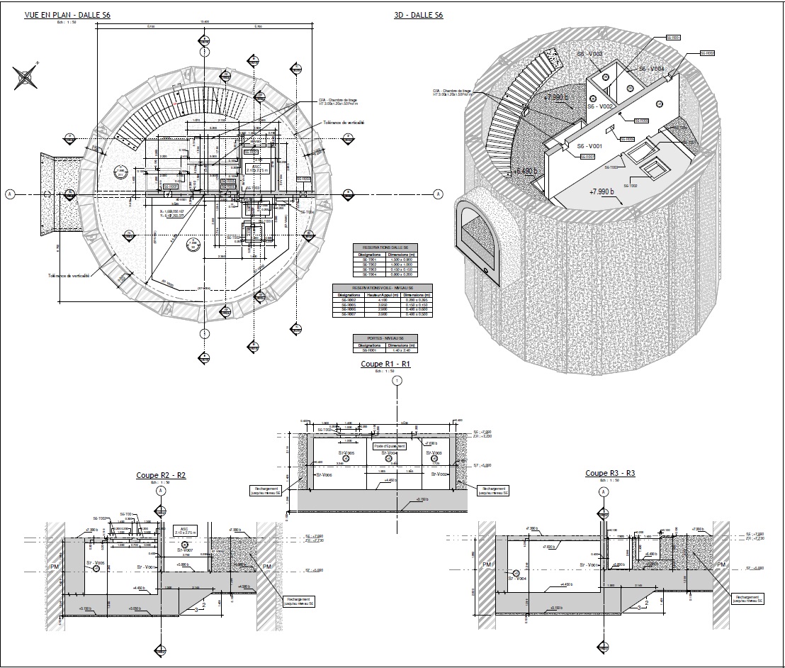
L16-lot3 Ouvrage annexe OA-603
Ouvrage circulaire, 40 m de diamètre, réalisé à l'abri d'une paroi moulée traversée par un tunnel lui aussi circulaire de diamètre = 17 m .5 niveaux : Radier + Dalles de quai + 4 dales intermédiaires + dalle de couverture.
Ligne 16-Lot3, OA_704P
Ouvrage annexe de service   
Ligne 17 Lot 3
La gare Charles de Gaule 2 est un ouvrage de 5 niveaux en béton armé
Travaux:
L17.3 OA-3903
L17.3 OA-3801
L17.3 OA-37014
L17.3 OA-3703P
L17.3 OA-3702
L17.3_OA-3701
3-L17.3 Gare Charles de Gaules - Modèle Robot
L17.3 Gare Charles de Gaules